Centro Social en C/ Platero Leiva
Córdoba· 2008
Promotor: F.A.I.S.E.M
[slideshow_deploy id=’2088′]
El local donde se ubica el Centro Social objeto de este documento se encuentra en un edificio, construido en 1988, delimitado por las calles Pasaje Platero Leiva, Camino de la Barca, Pasaje Platero Alcántara y Periodista Ricardo Rodríguez.
Este edificio, está formado por una planta de sótano, que alberga plazas de garaje, una planta baja en la que se sitúa el portal de acceso de las viviendas y locales comerciales y cuatro plantas, con nueve viviendas por planta. La superficie construida del edificio es de 5.791 m2
El edificio se encuentra en un estado aceptable de conservación. El sistema estructural es el de pórticos de hormigón armado y forjados unidireccionales.
El local albergará un Centro Social perteneciente a la Fundación Pública Andaluza para la Integración Social de Personas con Enfermo Mental (F.A.I.S.E.M.) en el que se realizarán actividades recreativas y docentes destinadas a los usuarios de los servicios que la fundación presta a la comunidad, con un horario de apertura de 9,00 a 22,00 h
No se prevé en el local el almacenaje de materiales a excepción de los propios de un uso administrativo y social. Existe en el edificio un armario de limpieza para almacenamiento de productos de limpieza.
En el local se habilita una estancia para oficio, donde se recibirá alimentos preparados para ser servidos en el comedor.
Se pretende la adecuación de un local a Centro Social de promoción del bienestar de personas con enfermedad mental, tendentes al fomento de la convivencia, la participación, la solidaridad y el uso del tiempo libre, propiciando la integración dentro de la comunidad y un funcionamiento lo más autónomo posible.
Su actividad estará orientada a adquirir hábitos de vida normalizados: horarios, distribución del tiempo libre, deportes, manualidades, actividades culturales y educativas
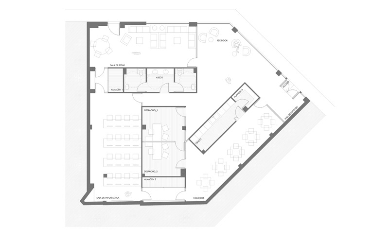
El Centro Social cuenta con Comedor y Oficio, de manera que se puedan ofrecer comidas, así como con una Sala de Estar y una Sala de Informática para la convivencia y realización de actividades didácticas y culturales; unos aseos de uso común, adaptados a personas con movilidad reducida; y unos despachos y vestuarios, de uso restringido al personal del Centro . El local posee un gran Hall de Entrada, que se configura como el elemento organizador del mismo.

