Viviendas Supervisadas y Centro Social en C/ Pedro Molina. Málaga
La parcela donde se pretende edificar se encuentra en la calle Pedro de Molina en el centro de Málaga. Actualmente la parcela está ocupada por una vivienda unifamiliar (PB+ 1) desocupada, cerrada y que presenta graves patologías estructurales internas. Este edificio no está afectado por ningún nivel de protección urbanística que impida su demolición y la construcción de otro de nueva planta.
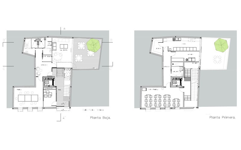
El solar tiene una superficie de 145,99 m2, forma irregular, y de sus linderos, todos son medianeros menos uno que da a calle rodada.
El programa a desarrollar se compone de un Centro Social en planta baja y primera, y dos alojamientos supervisados en planta segunda y tercera.
Por tratarse de una zona urbana histórica, en el centro de Málaga, el patio constituye uno de los elementos estructurales fundamentales, definiendo la morfología de esta trama. Siendo así, en el conjunto del edificio se organizarán las estancias más nobles, tanto del centro social como de los alojamientos, abiertas a la calle Pedro de Molina y las más íntimas o secundarias lo hacen al patio interior.
El edificio cuenta con un único núcleo de comunicaciones verticales que, con relación directa desde la calle, dará servicio tanto al Centro Social como a los alojamientos.
CENTRO SOCIAL:
El programa del Centro Social se desarrolla en dos plantas. En la primera de ellas se sitúan los usos más públicos: la sala de estar, el taller, los baños comunes y el patio. Este espacio abierto es muy utilizado por los usuarios de este tipo de edificios ya que sirve como lugar de esparcimiento. Mientras que en planta primera situamos el comedor, otras dependencias relacionados con éste (cocina, despensa) y el aseo de personal.
ALOJAMIENTOS SUPERVISADOS
Los alojamientos supervisados se organizarán con un esquema de funcionamiento muy claro, compuesto por dos ámbitos: uno de “día” formado por espacios abiertos a la calle y que contienen el salón-comedor y la cocina; y por otro lado, un ámbito de “noche” compuesto por dos dormitorios, y un baño competo que se iluminan desde el patio.
