Residencia en Sevilla Este. Sevilla
1.1.-DESCRIPCIÓN DEL SOLAR. SUPERFICIE
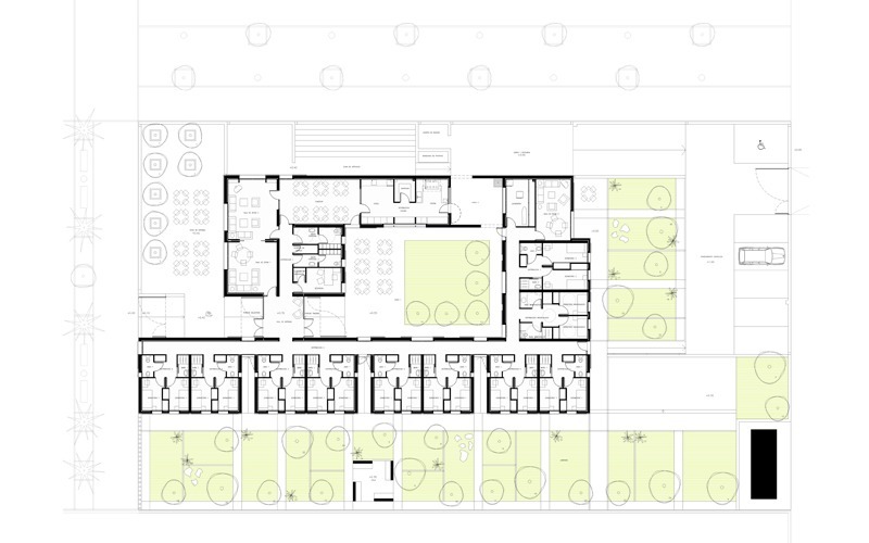
El solar ocupa una parcela destinada a S.I.P.S., y tiene forma rectangular. De sus cuatro linderos, uno da fachada a calle rodada, uno da fachada a un espacio público ajardinado y los otros dos dan a espacios públicos peatonales. La superficie total del solar es 2.132,26 m2. Se plantean dos accesos: el peatonal del edificio desde una de las dos calles peatonales, adaptado a minusválidos, de forma que esta zona peatonal tenga un mayor uso. Por otro lado la entrada de vehículos se plantea desde la calle rodada, de forma que sirva tanto para los aparcamientos como para la carga y descarga que necesite la casa-hogar.
El terreno presenta un ligero desnivel de aproximadamente 1.00 m entre la calle rodada y su fachada opuesta. Tomaremos la cota +/- 0.00 de referencia en la entrada principal al edificio. La diferencia de nivel entre las dos fachadas de acceso se salva construyendo tres niveles, el de la entrada peatonal, el que ocupa el edificio y el de los aparcamientos, que se encuentra casi a la cota de la calle Laos.
1.2.-JUSTIFICACIÓN DE LA SOLUCIÓN ADOPTADA
La construcción se retranquea respecto de los límites del solar, excepto en la entrada peatonal que es el único lugar donde el edificio se asoma a la calle, marcando esta entrada. Tiene en todo caso una única planta. En los espacios libres que el edificio deja en la parcela se ubican zonas libres de caracteres distintos.
En el centro se proyecta un patio ajardinado de grandes proporciones, que por estar rodeado de edificaciones de una planta será muy soleado y permitirá el uso como segundo salón de la casa-Hogar e incluso permitirá la realización de actividades al aire libre (juegos de mesa, cenas, etc.) y pequeños paseos.
En la zona de la entrada peatonal se plantea un espacio libre más público, con salida desde el salón, volcado más a la calle y con orientación sur, que sea una zona de estar agradable, donde incluso se realicen las visitas a los residentes.
Se prevé también una zona de acceso rodado con unos aparcamientos en superficie y una zona de carga y descarga, con acceso directo con la cocina a través de un patio de servicio.
Uno de los puntos fundamentales del proyecto es la zona ajardinada orientada a sur que se ha pensado como una serie de huertos, donde cada interno tenga su propio terreno, que pueda cuidar y lo utilice como entretenimiento. Estos pequeños huertos se distribuyen dentro de una trama de caminos que los conecta.
La casa hogar tiene dos circulaciones que desde la entrada rodean el patio, una que podríamos llamar de servicio conecta la zona de personal, comedor, zona de servicio y finalmente la lavandería con las habitaciones y otra que diríamos pública que partiendo también de la entrada conecta todas las habitaciones y cierra en anillo en la lavandería.
Se ha estimado conveniente que además del salón principal, exista otro de pequeñas proporciones, en un lugar más alejado del trasiego diario de la casa para que los residentes tengan varias opciones en la elección de la zona de estar.
Las habitaciones se han organizado en bloques de cuatro, que dejan unas rendijas entre si que permitirán junto con la entrada y los fondos de los pasillos, que la casa esté muy en contacto con el exterior y con vistas cruzadas desde el patio hasta los espacios exteriores.
En la organización de los bloques se distinguen tres zonas, una banda al exterior con las habitaciones, una intermedia con los núcleos de aseo compartidos por dos habitaciones y una banda de circulación que tangente a todos rodea el patio.
