Rehabilitación del Pósito de Trigo para Ayuntamiento. Almadén de la Plata (Sevilla)
El nuevo Ayuntamiento de Almadén de la Plata y antiguo Pósito del Trigo acoge en su interior los restos de la muralla del antiguo Castillo de Almadén, que ocupaba toda la manzana de la que forma parte el pósito y de hecho la estructura del mismo se apoya en los restos de las dos torres que lo definen en sus extremos y en un paño interior longitudinal donde se apoya la arcada superior que divide el edificio en dos crujías paralelas.
La manzana está constituida fundamentalmente por viviendas y en los muros medianeros aún se puede observar el trazado de la antigua muralla cuyos restos han sido fagocitados por construcciones realizadas a mediados del S. XX. Solamente en el lienzo Norte de la muralla se han conservado algunos elementos arquitectónicos originales, siendo en la esquina N-O de esta muralla donde se encuentra el Pósito del Trigo.
La excavación arqueológica del Pósito de Almadén nos mostró la superposición de las estructuras de dicho inmueble sobre los restos del Castillo que los documentos datan a mediados del siglo XV.
En el edificio se distinguen claramente tres operaciones constructivas:
– Muralla. (S. XV)
– Adosamiento a este recinto de un muro de mampostería con unos arcos intercalados para la construcción del pósito en alto a finales del S. XVIII.
– Reforma de dicho pósito en 1.960.
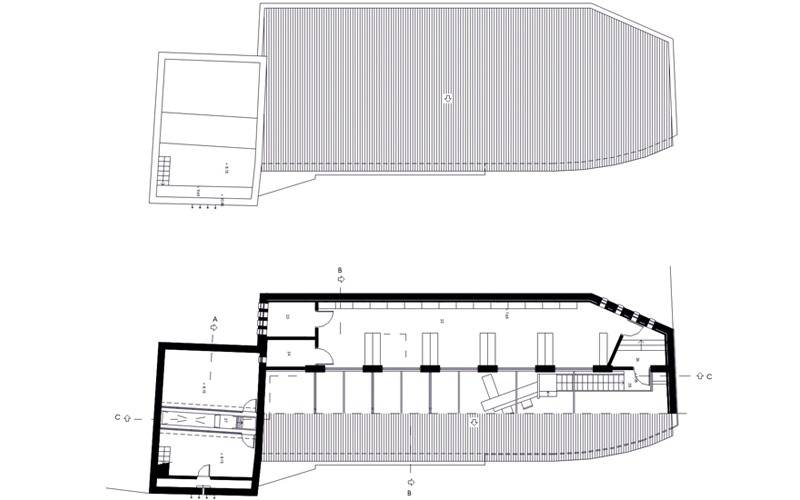
El edificio que llegó a nuestras manos, es singular a primera vista puesto que en planta baja es mayor el espacio macizo que el habitable. Esta circunstancia es debida al gran espesor de la muralla, de la torre, al cubo macizo que conforma la esquina de la muralla y por último a que la segunda crujía de la planta baja se había macizado con un relleno de escombros realizado desde la planta primera. Nos encontramos por tanto un edificio-pósito que en planta baja solo poseía una estrecha crujía y un acceso a la planta alta dentro de la torre; mientras que en planta primera por haber sido superada la cota de los elementos del Castillo existen dos crujías diáfanas de 3.5 m de ancho por 21 m. de largo a las que se accede desde la escalera de la torre.
La cubierta era a dos aguas tanto en las naves como en la torre y estaba mal resuelta puesto que vertía en su mitad sur hacia las medianeras de la vivienda colindante en la C/. Castillo.
La rehabilitación del edificio ha sido difícil, puesto que hay que establecer un sutil equilibrio entre las nuevas funciones que tiene que acoger y el propio valor histórico del inmueble y este difícil equilibrio se ve incrementado cuando el edificio tiene un gran peso específico en la memoria colectiva de la población.
La intervención llevada a cabo, pretendía dotar al pósito de un nuevo programa a la vez que se acepta la superposición de estructuras, recuperando y restaurando íntegramente los restos del Castillo (muralla, cubo y torre), los restos de las actuaciones del S.XVIII (se reconstruye íntegramente la arcada de ladrillo visto) y conservando la estructura espacial del pósito.
Las claves en las que se fundamentó el proyecto de rehabilitación se podrían resumir en las siguientes:
A. Recuperación de la segunda crujía en planta baja convirtiéndola en el espacio de comunicaciones del edificio. De esta forma se libera la primera crujía, la fachada y la torre como zonas de trabajo, dejando las de circulación junto a las medianeras.
B. Sacar a la luz todas las estructuras del Castillo diferenciando claramente la altura hasta la que se conservan, dejando su aparejo visto e incluso registrando su espesor a través del paso que se práctica para comunicar una crujía con otra en planta baja.
C. Reconstrucción y consolidación de todos los elementos de la arcada de ladrillo visto construida a finales del S.XVIII.
D. Conservación de la estructura del Pósito en la Planta Primera como espacio único, con una fuerte presencia de las cubiertas en este espacio. Para ello, se construye mediante pilastras que permitan las vistas cruzadas y se acristalan tanto los espacios entre pilastras como las divisiones interiores.
E. Remodelación de las cubiertas proyectando una cubierta plana como remate de la torre y otra inclinada a una sola agua, que resuelve con más limpieza el remate del edificio, elimina las aguas que se vertían sobre la medianera y libera un espacio bajo cubierta suficiente para albergar el archivo general, el cuarto de máquinas del ascensor y el cuarto de máquinas interiores del aire acondicionado
Por último habría que añadir que el edificio del antiguo Ayuntamiento consta de una nave similar a la de una pequeña Iglesia y tres despachos adosados a ella y todo ello en buen estado de conservación y por este motivo en el programa del nuevo Ayuntamiento no se ha incluido un Salón de Plenos, ya que la nave del antiguo es un espacio muy apropiado para este uso; al tiempo que los despachos adosados pueden ser útiles para actividades periféricas o complementarias de las que se llevan a cabo en el nuevo edificio.
