Rehabilitación de la Casa de los Tirado para Centro Cultural. La Palma del Condado (Huelva)
El edificio, de autor desconocido, ocupa la esquina situada entre la Plaza de España y la del Sagrado Corazón de Jesús, frente a la Iglesia Parroquial de S. Juan Bautista. Se trata de una casa señorial de mediados del S. XIX, uso que ha mantenido hasta hace pocos años. Su tipología es la de una casa-palacio, propia de la burguesía acomodada de la época de mayor auge del municipio, que se prolongaría hasta el año 1920 en que comienza el declive de la industria del vino en la zona.
A partir del año 1941 sufrió numerosas reformas que no afectaron la su configuración básica; exceptuando la enajenación del patio de labor y la torre-mirador que mutilan el edificio de acceso de caballerías y carruajes en su parte trasera.
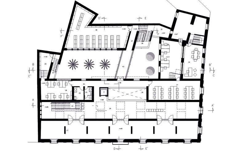
El conjunto se organizaba alrededor de un doble patio: el primero de trabajo agrícola y el segundo, separado por un muro, el patio noble con acceso al salón, comedor y zona de servicio. Cada uno de los lados de la U que envolvía los patios, correspondía a una tipología edificatoria claramente diferenciada:
1.- Construcción con fachada a la Plaza de España, que era la principal y la mejor conservada.
2.- A este edificio se le adosó por el lateral oeste del patio la zona de servicio, de muy mala calidad y casi derruida en el momento de redactar el proyecto.
3.- Por último y con fachada a la Plaza del Sagrado Corazón de Jesús está el edificio que servia de paso hacia el patio de labor de la casa y a una torre-mirador de tres plantas, que actualmente son de propiedad privada. Esta construcción es de menor altura que la principal y estaba parcialmente ocupada por la oficina de urbanismo y obras del Ayuntamiento.
En el momento de redactar el proyecto nos encontramos con parte de un conjunto edificatorio compuesto por tres elementos diferenciados; de los cuales dos tienen interés tipológico, funcional, constructivo etc., y presentan fachada a las dos plazas. Por el contrario el edificio de servicio que se adosaba a la medianera oeste no despertaba el más mínimo interés; estaba en estado ruinoso y taponaba gran parte de la fachada trasera de la casa principal.
Se llevó a cabo la adaptación del edificio para los usos propuestos, su reorganización espacial para acoger el nuevo programa, consolidación estructural, renovación de todas las instalaciones y adaptación a la normativa vigente, con los siguientes objetivos:
A.- Conservación tipológica y constructiva de los dos edificios que dan fachada a las dos plazas y demolición del edificio que ocupa la medianera oeste, dado su escaso interés y su mal estado de conservación.
B.- Conseguir en el edificio la riqueza espacial característica de estas casas señoriales y de la cual carecía. Se construyó un vacío (patio, espacio en doble altura) que relacionara las dos plantas y un jardín con palmeras y naranjos, que dado el clima del lugar se ha convertido en el mejor salón de recepciones con el que cuenta el conjunto.
C.- En la definición del programa funcional cabe distinguir usos ADMINISTRATIVOS y REPRESENTATIVOS (despachos de concejales, zona de trabajo, sala de conferencias, etc.) y CULTURALES (salas de exposiciones, archivos, etc.). Esta disparidad de usos tiene asociada una diferencia de horarios (Administrativo por la mañana y Cultural por la tarde); que se trataron de compatibilizar ubicando el administrativo en la zona más noble de la edificación (planta baja) y las salas de exposiciones en planta primera que por su luz, espacios diáfanos y configuración espacial es más adecuada. Se modificó tambien la cubierta del edificio principal, transformándola en plana con lucernarios que iluminan las salas de exposiciones de la crujía central.
D.- Para configurar un espacio tan importante como es el jardín y el patio, se usaron los edificios existentes y nuevas dependencias (sala de conferencias, c. limpieza, etc.) que adosadas a los linderos dejaron definido el lugar y cubrieron las medianeras existentes.
Para segmentar el patio se construyó una pasarela, que protegiendo el acceso a la sala de conferencias, sirve de salida de emergencia en planta segunda y divide el jardín en dos zonas, una más abierta con césped y palmeras y otra más recogida que sirve de paso entre los edificios.
