Nuevo Parque Territorial de Bomberos en Los Palacios y Villafranca
Datos básicos
-
Localización: Los Palacios y Villafranca (Sevilla).
-
Fecha: 2020-2022
-
Promotor: Diputación de Sevilla.
-
Reconocimiento: Primer Premio en Concurso Abierto.
-
Tipo de servicios incluidos: Proyecto modificado, Dirección de Obra, Dirección de Ejecución de Obra, Coordinación de Seguridad y Salud.
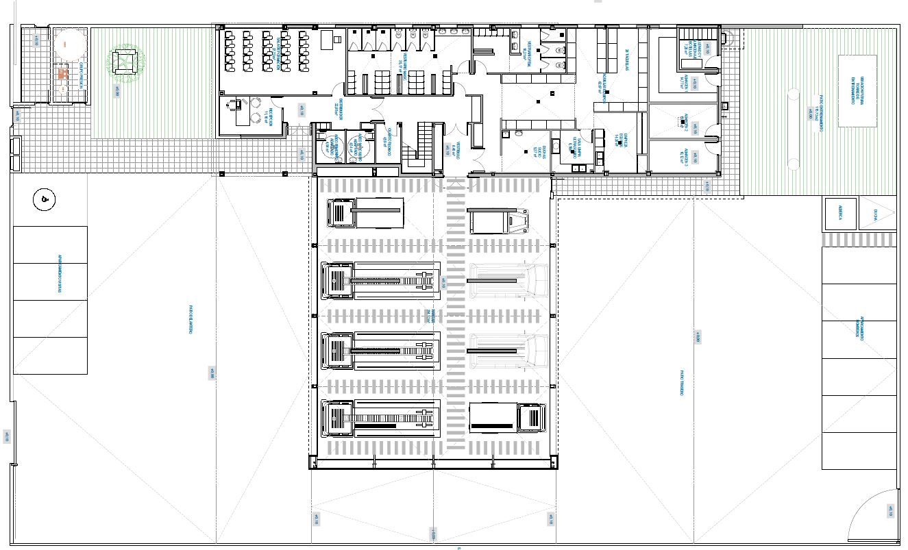
Descripción del edificio / intervención
-
Es una edificación aislada situada sobre parcela municipal.
-
Compuesta formalmente por dos cuerpos interconectados:
-
Hangar de vehículos: un cuerpo rectangular con cubierta a dos aguas, altura de 9,00 m.
-
Volumen auxiliar/transversal al hangar: se destina a uso de almacenamiento y a las funciones de higiene y bienestar de los trabajadores.
-
-
En el volumen auxiliar hay dos zonas, una con dos alturas que iguala la altura del hangar.
-
La superficie total construida es de aproximadamente 900 m².
