Concurso para Nueva Sede Judicial San Fernando (Cádiz)
1.- Descripción y Justificación de la solución formal adoptada.
RELACIÓN CON EL ENTORNO
El solar se ubica con un área de expansión de la Ciudad junto a la nueva Comisaría de Policía y cerca del mar, en la zona de Campo Soto.
La parcela da frente a una arteria principal con dos carriles de circulación en cada sentido y sección dilatada de acerados, en su parte trasera linda con una calle peatonal, en el lateral derecho con la citada Comisaria y en el lateral izquierdo el Ayuntamiento pretende abrir una nueva calle en el lindero con los depósitos de agua de San Fernando.
La propuesta apuesta por configurar el frente de la calle peatonal con un edificio público contundente de gran presencia y que a modo de baluarte custodie los valores democráticos y la independencia judicial. La fachada principal se proyecta potenciando la esquina entre la calle principal y la de nueva creación, en la nueva calle la planta baja se retranquea creando un gran atrio de acceso al edificio donde se produzca la espera a cubierto.
La nueva Comisaría, el Palacio de Justicia y otras edificaciones, harán que este nuevo enclave cobre relevancia y vida ciudadana; ya que aunque actualmente la edificación esta consolidada, el centro de gravedad de la población está desplazando hacia la Calle Real donde se encuentra el Ayuntamiento y el casco histórico de San Fernando.
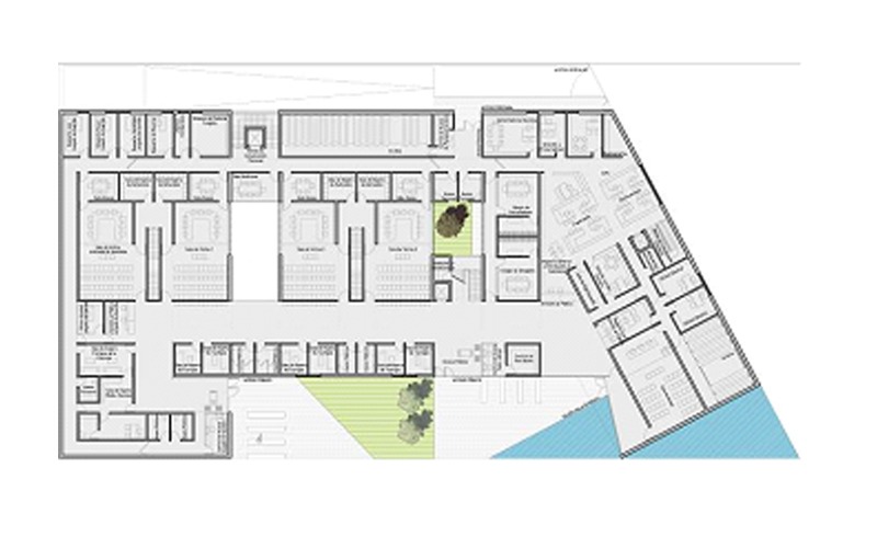
UBICACIÓN DE USOS GLOBALES Y DECISIONES BÁSICAS
Dada la complejidad de usos y circulaciones, se propone un edificio de dos plantas y un sótano que adaptándose a los límites de la parcela, proyecta un recinto interior de trabajo espacioso e iluminado por las fachadas exteriores y las cañoneras que configuran la planta primera del edificio.
En planta baja se organizan los accesos generales, juzgado de guardia, salas de vistas, atención al público, etc, en planta primera los juzgados y servicios generales de acceso restringido y en el sótano el acceso y custodia de detenidos, garaje, archivos e instalaciones. Este esquema organizativo permite aislar el trabajo de los juzgados en recintos de gran privacidad en planta primera, al mismo tiempo que se organizan las circulaciones principales del edificio separadas entre si y cada una con su nivel de control de accesos.
En el frente a fachada y después del acceso acodado para control se encuentra el vestíbulo principal con los usos abiertos al público en general, los accesos restringidos para profesionales y gestiones directas en los juzgados, en la medianera izquierda se encuentran las circulaciones internas de los empleados de los Juzgados y en el sótano los recintos de acceso prohibido a personas que no trabajen directamente es estos espacios.
La propuesta se fundamenta en apoya en varios aspectos:
A. Se organiza el acceso mediante un espacio exterior cubierto y un hall de acceso con dobles alturas, el funcionando el Palacio de Justicia será con entradas independientes o sectorizadas para la Sala de Bodas, Juzgado de Guardia, Registro Civil y acceso de los furgones policiales.
B. La posición intermedia de la Sala de Vistas en planta baja y entre los recintos para detenidos en sótano y los juzgados en planta primera junto con la situación aislada de trabajo para los Juzgados en un recinto interior separado de las circulaciones principales por una planta hace que funcione bien el edificio y que las circulaciones y accesos de los detenidos, personal del juzgado y público en general puedan ser independientes, sin cruces, confluyendo únicamente en la sala de vistas. Las oficinas de planta primera configuran las piezas de remate del baluarte dejando entre si las cañoneras por donde se iluminarán los juzgados mediante grandes superficies acristaladas que introducen en la planta prismas de luz.
C. Una vez analizado el programa, se cree indispensable la construcción de un sótano iluminado por los patios ingleses; donde se ubiquen las zonas de servicio, de uso restringido, así como archivos y almacenes que permitan liberar en las plantas superiores superficie para oficinas. Así mismo, se dota al edificio de los elementos indispensables para el buen uso del mismo y el cumplimiento de la normativa vigente, (Protección Contra Incendios, Eliminación de Barreras Arquitectónicas, aseos de personal, etc).
D. En el proyecto se apuesta por que todas las estancias de trabajo estén bien iluminadas a través de las fachadas y espacios en doble altura que proporcionarán un ambiente relajado de trabajo.
E. Especial interés hemos puesto en que las zonas de circulación también posean buena relación con el exterior a través de una sucesión regular de contactos con el exterior que darán gran luminosidad a estas zonas ubicadas en el interior.
F.– El garaje, de fácil acceso, se ubica en el sótano separando la zona de detenidos del resto de los usos. Se proyecta con una rampa exterior de acceso que dará a este espacio iluminación y ventilación natural.
G.– La organización espacial se pretende conseguir mediante elementos lineales (muros de hormigón armado) que serán al mismo tiempo cerramiento y estructura del edificio.
H.– En general la dotación de superficie para los distintos usos es generosa Aa priori@, teniendo previsto su ajuste a las necesidades reales y concretas de cada zona en el posterior desarrollo del proyecto.
