Concurso para la Rehabilitación del Convento de Las Freilas.
En nuestro paseo por Mérida nos encontramos en muchos puntos con un paisaje urbano desestructurado en el que se alternan el maravilloso paisaje de la ciudad frente al río o el inesperado hallazgo del Templo de Diana al doblar una esquina; con un mundo confuso de edificaciones en altura junto al caserío popular de 2 plantas.
Este proceso que se va fraguando con el desarrollo del pueblo-ciudad en los años 60 actualmente se presenta consolidado con multitud de diferentes alturas que producen un mundo de medianeras a la vista.
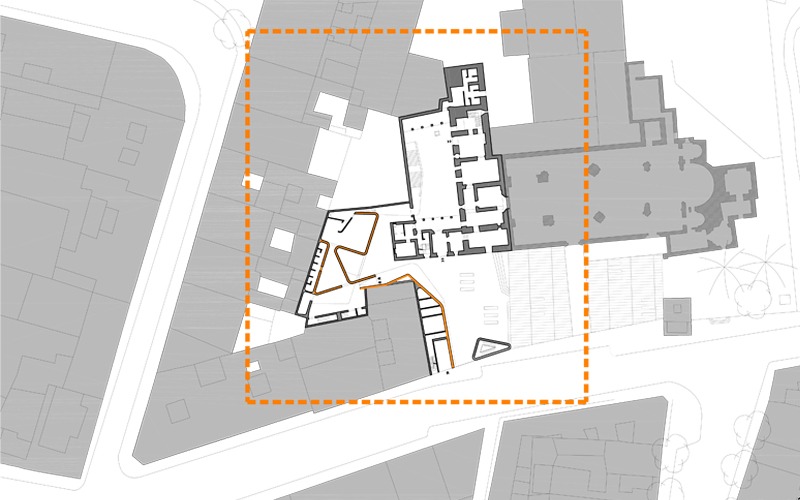
Este negativo impacto visual es especialmente visible en el entorno del Convento de las Freylas rodeado por medianeras en dos tercios de su perímetro. A esto hemos de añadir la densidad de tráfico que soporta la Avenida de Extremadura y la existencia de un límite artificial en todo este sector de la ciudad y muy cercano a la parte trasera del convento, el despliegue de vías de la estación ferroviaria de Mérida que divide la ciudad con una barrera infranqueable. Dentro de este caos brilla con luz propia la pieza urbana y arquitectónica de la Iglesia de Santa Eulalia, el convento de las Freylas que lo acompaña y su compás de entrada, único espacio urbano cualificado del entorno.
El Conjunto se proyecta como un mundo interior que se asoma a la Avenida de Extremadura mediante un compás de entrada que partiendo de la misma, se interna en el conjunto, alejándose del mundanal ruido y acercándose al interior conventual. Desde este acceso podemos llegar a la entrada principal del conjunto, su vestíbulo y al patio que puede servir de zona de descanso tanto para los usuarios del archivo, salón de actos, sala de exposiciones, etc. como para los ciudadanos y los visitantes del centro o a la Hospedería por la fisura practicada en el rincón del compás.
Fue nuestro deseo desde el principio conseguir un lugar recogido y respetuoso con el edificio existente; teniendo muy en cuenta que el valor principal está allí y para mostrarlo con todo su esplendor sólo hay que «borrar» u ocultar lo superfluo.
Puesto que el proyecto tiene dos usos fundamentales, el cultural (Centro de Estudios Eulalienses) y de hospedaje, nos pareció también desde el principio, que el centro de estudios debería estar íntegramente en el edificio existente ocupando la parte expositiva la planta baja, y el resto de los usos (biblioteca, archivo, etc.) en lugares más aislados del público en planta primera y segunda.
También estuvo presente desde la primera visita, la idea de dejar como conjunto unido e interrelacionado el Convento y la Iglesia, liberando espacio, metiendo «Aire» entre este cuerpo principal y la medianera oeste; para finalmente adosar una piel que nos aislara del caótico mundo de las medianeras, conformando un espacio propio donde se emplazarían los espacios más funcionales del uso hotelero.
Una vez que accedemos al espacio de entrada tendremos dos opciones:
-
Acceder al Centro de Estudios Eulalienses a través de la puerta principal del convento para hacer uso de sus instalaciones o disfrutar de la vista al lugar.
-
Dejarnos acompañar por la piel que cubre la medianera izquierda y que se adentra a través de una fisura (casi como se llega a través de un desfiladero a Petra) hasta el espacio contemporáneo de acceso a la Hospedería.
En caso de construir el sótano de aparcamiento bajo la entrada, se construiría un pequeño cuerpo que comunicara desde el compás, directamente con el aparcamiento aislando este espacio de la calle y consiguiendo el mismo efecto que el Hornito de Santa Eulalia situado delante de la Iglesia.


