Concurso para INSS en Lucena
El edificio se encuentra en una zona bastante compacta de la trama urbana de Lucena, concretamente en una isla entre viviendas unifamiliares adosadas, ocupada por una plaza ajardinada y la estructura de un edificio inacabado que ocupa aproximadamente la mitad del espacio, dando frente al jardín por su extremo corto y el resto de las fachadas a las calles perimetrales, aunque retranqueadas con respecto a la alineación de la parcela unos 2 metros en todos sus frentes.
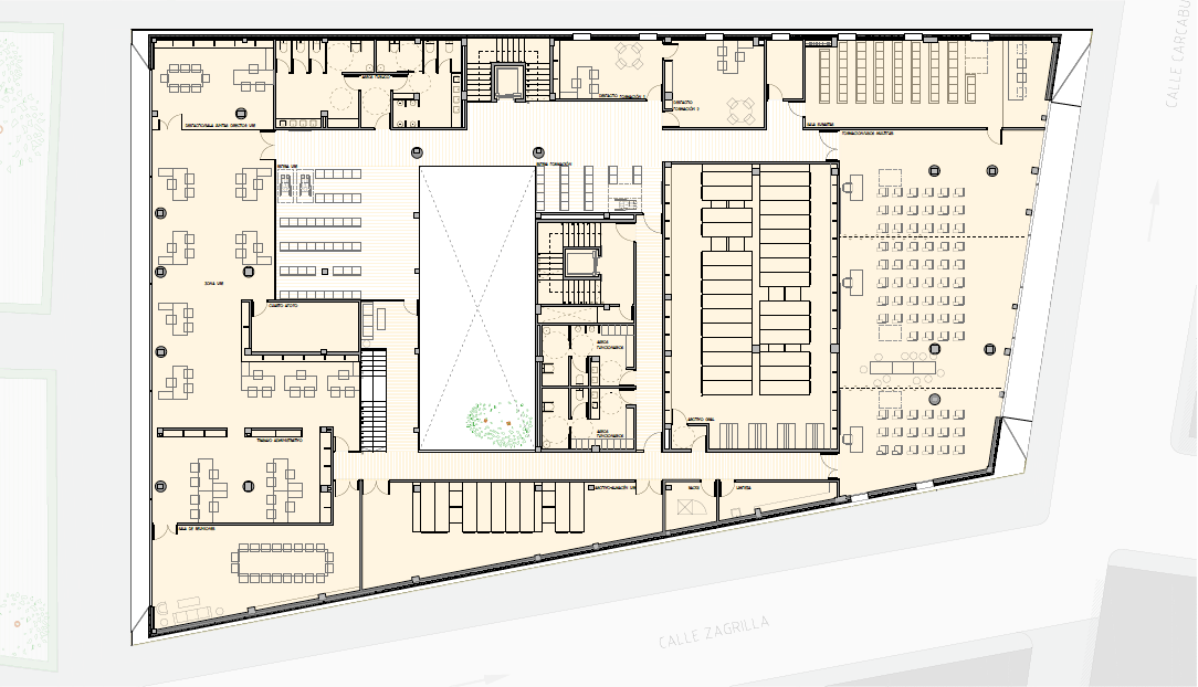
El proyecto aprobado inicialmente preveía el acceso público por uno de los laterales largos y el de funcionarios por el opuesto. Aceptando esta primera decisión, que nos parece acertada por llegar con las dos entradas al centro del edificio, planteamos las dos áreas principales de trabajo y atención al público en los dos extremos del edificio construido y las zonas de espera, circulaciones, comunicaciones, salas técnicas, aseos, etc., en la zona central de este edificio sensiblemente alargado.
Una vez tomada esta decisión el edificio se organiza espacialmente con las áreas de trabajo y atención al público en los extremos y las circulaciones de público y personal en el centro, con recorridos completamente diferenciados que ocupan los dos laterales, tanto en planta baja como alta.
Entre ambos recorridos diferenciados queda el espacio en doble altura que sirve como sala de espera de la planta baja y otras dependencias auxiliares.
Reutilizando el patio existente y cerrándolo superiormente con una montera traslúcida, a modo de patio de operaciones de los antiguos bancos, conseguimos un punto de referencia para todo el edificio, inmediato a la entrada principal y que además meter luz en la zona central, sirve de referencia espacial en todos los movimientos por el interior, ya sea por las zonas internas restringidas a los trabajadores del centro, como en las zonas generales a las que tiene acceso el público general.
Pretendemos que la oficina tenga una imagen contundente que presida este espacio urbano y para ello diferenciamos claramente en imagen y características las plantas baja y alta.
Aprovechando el espacio entre el edificio y la alineación exterior se propone una envolvente completa de la planta alta, muy abierta en los extremos coincidiendo con los espacios de trabajo frente al jardín y la calle trasera y bastante cerrado en las calles laterales frente a las viviendas unifamiliares adosadas que rodean el edificio. Esta segunda piel vuela (flota) sobre la planta baja dejándola en sombra a la vez que genera una fachada ventilada, muy eficiente desde el punto de vista de la eficiencia energética. La planta baja queda bajo este volumen y tiene una piel discreta donde se van alternando los huecos de acceso al edificio, ventanales protegidos por una malla metálica o las puertas exteriores de los cuartos de instalaciones.
