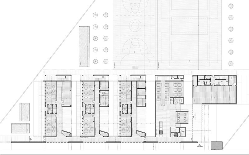
Dentro de la convocatoria de 2018 “1,5 % Cultural” del Ministerio de Fomento, el Excmo. Ayuntamiento de Fregenal de la Sierra publica el concurso de Rehabilitación del Colegio de los Jesuitas. En la propuesta presentada por nosotros, y que resultaría ganadora, el hilo...



















