Bioincubadora en la Ciudad de la Salud y la Innovación de Cáceres

Fecha: 2014 / 2018

El proyecto de la Bioincubadora en la Ciudad de la Salud y la Innovación de Cáceres, desarrollado por TRAX SLP en colaboración con Francisco Javier Robustillo Yagüe, fue el ganador del concurso de arquitectura para la construcción de este edificio. La obra se llevó a cabo entre 2014 y 2018 bajo la promoción de la Sociedad Gestora de la Ciudad de la Salud y la Innovación, S.A.U.

Concepto y diseño

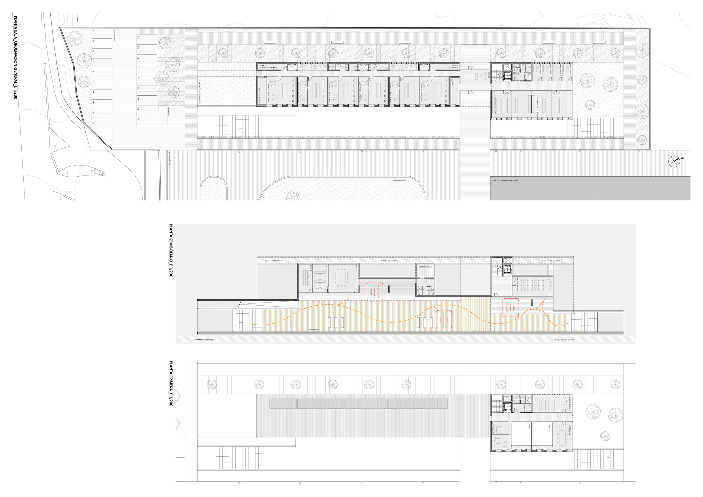
El diseño del edificio busca completar la plaza-glorieta del Centro de Cirugía de Mínima Invasión Jesús Usón, proyectado por el estudio de José Antonio Carvajal. Para ello, se propone un volumen alargado que se sumerge en el terreno, creando un espacio intermedio y sumergido. Se excavan 3,50 metros de relleno existentes para dar lugar a una plaza en la planta sótano, accesible mediante dos rampas laterales. Este espacio alberga zonas de esparcimiento y dependencias susceptibles de ser usadas de forma independiente al edificio principal.

Sobre esta plaza, se sitúan dos volúmenes: uno de una sola planta que contiene los laboratorios para empresas y otro de dos plantas que alberga la zona administrativa y usos comunes. La imagen del edificio se caracteriza por una seriación de huecos, modulada para adaptarse a las necesidades de un edificio de laboratorios.

TRAX SLP
Resumen de privacidad

Esta web utiliza cookies para que podamos ofrecerte la mejor experiencia de usuario posible. La información de las cookies se almacena en tu navegador y realiza funciones tales como reconocerte cuando vuelves a nuestra web o ayudar a nuestro equipo a comprender qué secciones de la web encuentras más interesantes y útiles.