• Proyectos
  • Equipo
    • Perfil
    • Socios
    • Colaboradores
  • Premios
  • Publicaciones y exposiciones
    • Publicaciones digitales
    • Exposiciones
  • Noticias/Blog
  • Contacto

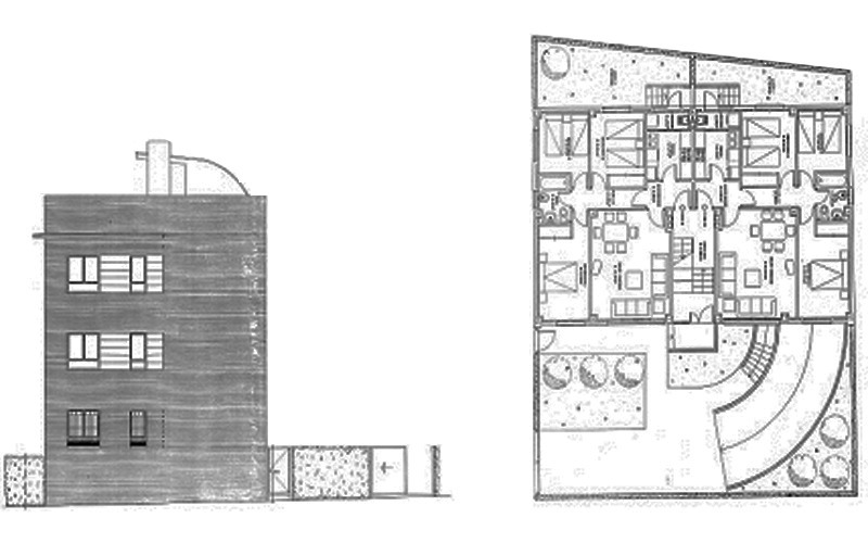
Seis viviendas y garajes. Dos Hermanas (Sevilla)

por JARP | Sep 1, 2014 | 1990/94, año, categoría, localización, obras y proyectos, residencial, sevilla

Seis viviendas y garajes

Bellavista. Dos Hermanas (Sevilla) · 1991

Promotor: Privado

En colaboración con D. Pedro Luis Rodríguez de Pineda

[slideshow_deploy id=’2865′]

imagen de cabecera

Mapa del sitio

  • Proyectos
  • Equipo
    • Perfil
    • Socios
    • Colaboradores
  • Premios
  • Publicaciones y exposiciones
    • Publicaciones digitales
    • Exposiciones
  • Noticias/Blog
  • Contacto

PROGRAMA KIT DIGITAL COFINANCIADO POR LOS FONDOS NEXT GENERATION (EU) DEL MECANISMO DE RECUPERACIÓN Y RESILIENCIA

Redes sociales

LOPD / RGPD

Aviso legal
Política de privacidad
Política de cookies

Contacto

C/. Teodosio, 25. Bajo 1
41002 – Sevilla (España)

Tlf.:+34 954 21 93 73

acamposa@traxslp.com
acamposa@arquitecturacamposalcaide.com

© Diseñado por iNova Cloud, una empresa de Grupo iNova. | © 2002 – 2025 Técnicos Reunidos Andalucía Extremadura.
Redimensionar imagen
Contraste
Accessibility by WAH
  • Inicio
  • año
    • 2016/actualidad
  • aviso legal
  • categoría
    • administrativo
    • asistencial
    • cultural
    • diseño interior
  • Colaboradores
  • concursos
  • conferencias
  • contacto
  • espacios públicos
  • estudio
    • equipo
    • perfil
  • Exposiciones
  • labor docente
  • localización
    • andalucía
      • huelva
      • sevilla
    • extremadura
      • badajoz
      • cáceres
  • mapa proyectos realizados
  • mobiliario
  • Noticias/Blog
  • Obras y proyectos
  • otros méritos
  • otros proyectos
  • Perfil
  • Política de privacidad
  • Premios
  • publicaciones
  • Publicaciones digitales
  • Publicaciones digitales_OLD
  • rehabilitación
  • residencial
  • servicios
  • socios
  • urbanismo
  • viajes de arquitectura

Utilizamos cookies para ofrecerte la mejor experiencia en nuestra web.

Puedes aprender más sobre qué cookies utilizamos o cambiarlas en los ajustes.

TRAX SLP
Resumen de privacidad

Esta web utiliza cookies para que podamos ofrecerte la mejor experiencia de usuario posible. La información de las cookies se almacena en tu navegador y realiza funciones tales como reconocerte cuando vuelves a nuestra web o ayudar a nuestro equipo a comprender qué secciones de la web encuentras más interesantes y útiles.

Necesarias

Las cookies estrictamente necesarias tiene que activarse siempre para que podamos guardar tus preferencias de ajustes de cookies.

Analítica

Esta web utiliza Google Analytics para recopilar información anónima tal como el número de visitantes del sitio, o las páginas más populares.

Dejar esta cookie activa nos permite mejorar nuestra web.