Concurso para Palacio de la Justicia.
La zona de actuación está situada en un entorno natural privilegiado, ocupando la punta de un terreno limitado por uno de los meandros del río Genil. Según el plano de situación aportado para el concurso, el Ayuntamiento pretende ocupar la zona con un pequeño parque en la parte más extrema y dos nuevas manzanas edificadas, que dejan entre sí una calle de penetración de nueva creación. Otra calle se apoya sobre las medianeras traseras de las edificaciones existentes y que actualmente impiden el paso al solar. El lugar donde se ubicará el nuevo edificio no es accesible actualmente desde la vía pública y se encuentra ocupado por unos almacenes de materiales de construcción.
La propuesta apuesta por configurar el frente al parque con un edificio público de gran presencia. La fachada principal se coloca mirando hacia el espacio público y el río, presentando también fachada y un acceso a la calle central de nueva creación que penetra al lugar desde el núcleo consolidado de población. El nuevo parque, el Palacio de Justicia, el teatro existente y otras edificaciones harán que este lugar cobre vida; ya que aunque actualmente la edificación está consolidada, el centro de gravedad de la población se está desplazando en dirección contraria, en parte debido a la barrera natural que supone el río.
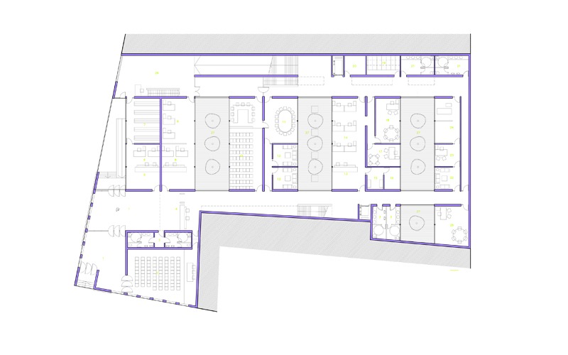
Dada la complejidad de usos y circulaciones, se propone un edificio de dos plantas y un sótano que, adaptándose a los límites de la parcela, proyecta un recinto interior de trabajo muy iluminado por una sucesión regular de patios que bajan hasta planta baja o sótano y dejan las circulaciones junto a las medianeras.
Este esquema organizativo permite aislar el trabajo de los juzgados en recintos de gran privacidad, al mismo tiempo que se organizan las circulaciones principales del edificio separadas entre sí y junto a las medianeras. En el frente a fachada estarán los usos abiertos al público en general; en la medianera derecha, los accesos restringidos para profesionales y gestiones directas en los juzgados; en la izquierda, las circulaciones internas de los empleados de los juzgados; y en el sótano, los recintos de acceso prohibido a personas que no trabajen directamente en estos espacios.
La propuesta se fundamenta en varios aspectos:
-
Se organiza el acceso con un pórtico de entrada y un hall en doble altura, funcionando el Palacio de Justicia con entradas independientes para la Sala de Bodas, Juzgado de Guardia, Registro Civil y acceso de los furgones policiales.
-
La posición intermedia de la Sala de Vistas y la situación aislada de trabajo para los dos juzgados en un recinto interior separado de las circulaciones por potentes muros. Las oficinas se abren a los patios con grandes superficies acristaladas que introducen en la planta prismas de luz.
-
Una vez analizado el programa, se considera conveniente la construcción de un sótano iluminado por los patios que llegan hasta él, donde se ubiquen las zonas de servicio, de uso restringido, así como archivos y almacenes que permitan liberar en las plantas superiores superficie para oficinas. Así mismo, se dota al edificio de los elementos indispensables para el buen uso del mismo y el cumplimiento de la normativa vigente (protección contra incendios, eliminación de barreras arquitectónicas, aseos de personal, etc.).
-
En el proyecto se apuesta por que todas las estancias…
